Casa Patio de maó manual i fusta
Lloc
Luceni
Data
2021
Superfíce
143 m²
Tipología
Obra nova
Sistemes constructius
Murs de maó manual / Coberta de fusta
Fase
Projecte
Coordinació
De mans a terra
Execució
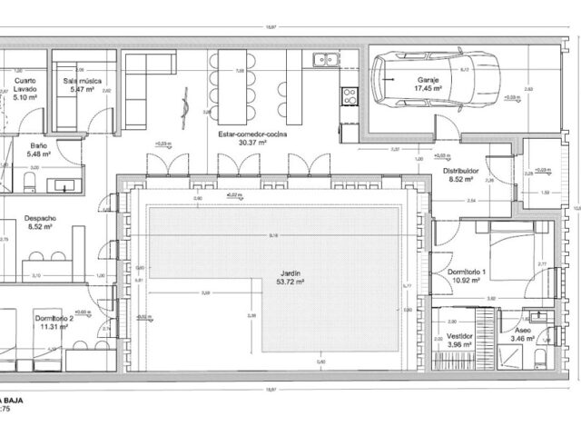
Habitatge unifamiliar de nova construcció entre mitgeres. Tot l’habitatge es disposarà en planta baixa i constarà de garatge, pati, dos dormitoris, bany, lavabo, distribuïdor, sala de rentada, despatx, un petit quart de música i sala d’estar-menjador-cuina. Vista en planta, l’habitatge forma una U entorn d’un pati situat al costat de la mitgera sud-est.
Els murs de maó massís inclouen pilastres per millorar la seva capacitat portant i donar una textura i un ritme a façana principal i pati.
Les cobertes són inclinades a una aigua, formant un impluvi cap al pati-jardí. L’estructura de fusta es resol amb dues bigues principals que donen forma als aiguafons que connecten els diferents vessants de la teulada.





